2001 NuWa ARCHIVES:

  Below are thumbnailed images for each HitchHiker II "S" Series floor plan, followed by a table of specifications for each plan. For a larger view of an individual floor plan, simply click on it to enlarge...

  27.5RK
27.5 RK

 
  29.5RK
29.5 RK

 
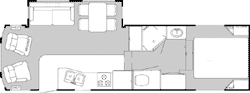
  29.5RL
29.5 RL

 
  30.5 RDBG
30.5 RDBG

 
  30.5 RKBG
30.5 RKBG

 
  30.5 RLBG
30.5 RLBG

 
  31.5 RKTG
31.5 RKTG

 
  31.5 RLTG
31.5 RLTG

 

 
 
MODEL APPROX. UVW APPROX. HITCH WT. GVWR LOAD CAP. CCC LENGTH APPROX. EXT. HT. INT. HT. (downstairs) INT. HT. (bedroom)
27.5 RK 8740 1800 11350 2610 2083 28' 8" 11' 10" 83"/96" 67"
29.5 RK 8848 1733 11440 2592 2065 29' 11" 11' 10" 83"/96" 67"
29.5 RL 8911 1780 11445 2544 2017 30' 7" 11' 10" 83"/96" 67"
30.5 RD BG 10039 1740 13434 3434 2907 32' 9" 11' 11" 83"/96" 67"
30.5 RL BG 10041 1980 13653 3612 3085 32' 7" 11' 11" 83"/96" 67"
30.5 RK BG 10006 1960 13638 3632 3105 31' 11" 11' 11" 83"/96" 67"
31.5 RK TG 10820 2000 13668 2848 2321 33' 2" 11' 11" 83"/96" 67"
31.5 RL TG 10674 1780 13503 2829 2302 32' 9" 11' 11" 83"/96" 67"

MODEL INT. LENGTH (glide room) AWNING AXLES SPRINGS WHEELS TIRES TIRE SIZE BRAKES FRAME
27.5 RK 136" 16' 5200 2600 2540 2540 ST225/75R15D 12" 10"
29.5 RK 136" 17' 5200 2600 2540 2540 ST225/75R15D 12" 10"
29.5 RL 136" 20' 5200 2600 2540 2540 ST225/75R15D 12" 10"
30.5 RD BG 136" 20' 7000 3500 3315 3042 LT245/75R16E 12" 10"
30.5 RL BG 136" 19' 7000 3500 3315 3042 LT245/75R16E 12" 10"
30.5 RK BG 136" 19' 7000 3500 3315 3042 LT245/75R16E 12" 10"
31.5 RK TG 174"/106" 15' 7000 3500 3315 3042 LT245/75R16E 12" 10"
31.5 RL TG 95"/106" 17' 7000 3500 3315 3042 LT245/75R16E 12" 10"

UVW (Unloaded Vehicle Weight) is the weight of this trailer as manufactured at the factory. It includes all weight at the trailer axle(s) and tongue or pin. If applicable, it also includes full generator fluids, including fuel, engine oil and coolants.

GVWR (Gross Vehicle Weight Rating) is the maximum permissable weight of this trailer when fully loaded. It includes all weight at the trailer axle(s) and tongue or pin.

NCC (Net Carrying Capacity) Means the maximum weight of all personal belongings, food, fresh water, LP gas, tools dealer installed accessories, etc. that can be carried by this trailer.

CCC (Cargo Carying Capacity) is equal to GVWR minus each of the following: UVW, full fresh (potable) water weight (including water heater), and full LP-gas weight.