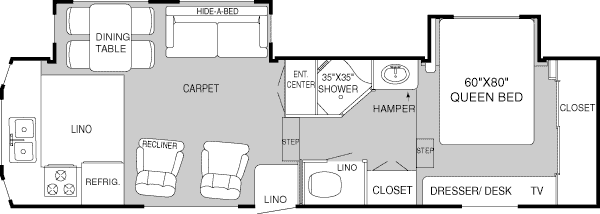
2001 NuWa ARCHIVES:

  HitchHiker II "S" Series 30.5 RKBG

 
MSRP: $38,500