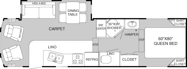
2001 NuWa ARCHIVES:

  HitchHiker II "S" Series 29.5RL

 
MSRP: $34,580