2001 NuWa ARCHIVES:

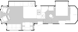
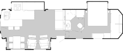
  Below are thumbnailed images for each SnowBird Legend floor plan, followed by a table of specifications for each plan. For a larger view of an individual floor plan, simply click on it to enlarge...

  32+2 RLBWTG
32+2 RLBWTG

 
  32+2 RKBWTG
32+2 RKBWTG

 

 
 
Model Type Hitch Weight UVW GVWR NCC GVWR Axle CCC Spring Rating
32+2 RL BW TG 2540 13020 15020 3000 7000 2190 3500
32+2 RK BW TG 2320 12900 15900 3000 7000 2190 3500

Model Type Tire Size # of Axles Brake Size Wheel Size, Bolt Pattern Wheel Rating Frame Size
32+2 RL BW TG LT235/85R16G159 2 EA. 12 X 2 16X6K/8HOLE 3750 8"/14"
32+2 RK BW TG LT235/85R16G159 2 EA. 12 X 2 16X6K/8HOLE 3750 8"/14"

Model Type Suspension Overall Length w/ Caps LR/KIT Interior Height Bedroom Interior Height Exterior Height Glide Room Interior
32+2 RL BW TG UNDERSLUNG 35' 7" 91"/96" 69 1/2" 12' 5" 144"/139"
32+2 RK BW TG UNDERSLUNG 35' 7" 91"/96" 69 1/2" 12' 5" 148"/109"

Model Type Bed Arrangement Std. Sofa Length / Type Furnace BTU Hitch Size Awning Size
32+2 RL BW TG BEDGLIDE 74" HAB 40000 H 20000 15'
32+2 RK BW TG BEDGLIDE 66" HAB 40000 H 20000 15'

Model Type Optional Awning G/O Windows Kit. (Gray) Holding Tank Size Stool (Blk) Holding Tank Size Gray Holding Tank Size Fresh Water Capacity (inc. water heater) Washer/Combo
32+2 RL BW TG 11' 33 GAL. 38 GAL. 38 GAL. 90 GAL. YES
32+2 RK BW TG 11' 33 GAL. 38 GAL. 38 GAL. 90 GAL. YES

Model Type Stak-Pak Washer/Dryer TV Size Size x Side Refrig. 110 Volt Dual Cassette Stereo w/ CD Player
32+2 RL BW TG NO 25" * OPTIONAL STD. PIONEER
32+2 RK BW TG NO 25" * OPTIONAL STD. PIONEER

UVW (Unloaded Vehicle Weight) is the weight of this trailer as manufactured at the factory. It includes all weight at the trailer axle(s) and tongue or pin. If applicable, it also includes full generator fluids, including fuel, engine oil and coolants.

GVWR (Gross Vehicle Weight Rating) is the maximum permissable weight of this trailer when fully loaded. It includes all weight at the trailer axle(s) and tongue or pin.

NCC (Net Carrying Capacity) Means the maximum weight of all personal belongings, food, fresh water, LP gas, tools dealer installed accessories, etc. that can be carried by this trailer.

CCC (Cargo Carying Capacity) is equal to GVWR minus each of the following: UVW, full fresh (potable) water weight (including water heater), and full LP-gas weight.

 

[an error occurred while processing this directive]