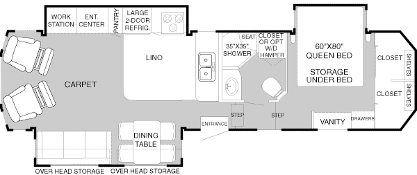
2001 NuWa ARCHIVES:

  SnowBird Legend 32+2 RLBWTG:

 
MSRP: $55,020

 

[an error occurred while processing this directive]