2001 NuWa ARCHIVES:

  Below are thumbnailed images for each HitchHiker II Rio Grande floor plan, followed by a table of specifications for each plan. For a larger view of an individual floor plan, simply click on it to enlarge...

  31 FKTG
31 FKTG

 
  31 RLBG
31 RLBG

 
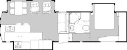
  32 RIKTG
32 RIKTG

 
  32 RLTG
32 RLTG

 

 
 
MODEL APPROX. UVW APPROX. HITCH WT. GVWR LOAD CAP. CCC LENGTH APPROX. EXT. HT. INT. HT. (downstairs) INT. HT. (bedroom)
31 RL BG 11024 1880 13578 2554 1742 32' 4" 12' 7" 99" 72"
31 FL TG 11767 2160 14112 2345 1533 32' 9" 12' 7" 99" 72"
32 RL TG 11663 2120 14076 2413 1601 33' 2" 12' 7" 99" 72"
32 RIK TG 11972 1900 13878 1906 1094 33' 2" 12' 7" 99" 72"

MODEL INT. LENGTH (glide room) AWNING AXLES SPRINGS WHEELS TIRES TIRE SIZE BRAKES FRAME
31 RL BG 136" 16' 7000 3500 3315 3042 LT245/75R16E 12" 14"
31 FL TG 136"/106" 17' 7000 3500 3315 3042 LT245/75R16E 12" 14"
32 RL TG 95"/106" 17' 7000 3500 3315 3042 LT245/75R16E 12" 14"
32 RIK TG 147"/121" 16' 6" 7000 3500 3315 3042 LT245/75R16E 12" 14"

UVW (Unloaded Vehicle Weight) is the weight of this trailer as manufactured at the factory. It includes all weight at the trailer axle(s) and tongue or pin. If applicable, it also includes full generator fluids, including fuel, engine oil and coolants.

GVWR (Gross Vehicle Weight Rating) is the maximum permissable weight of this trailer when fully loaded. It includes all weight at the trailer axle(s) and tongue or pin.

NCC (Net Carrying Capacity) Means the maximum weight of all personal belongings, food, fresh water, LP gas, tools dealer installed accessories, etc. that can be carried by this trailer.

CCC (Cargo Carying Capacity) is equal to GVWR minus each of the following: UVW, full fresh (potable) water weight (including water heater), and full LP-gas weight.