2001 NuWa ARCHIVES:

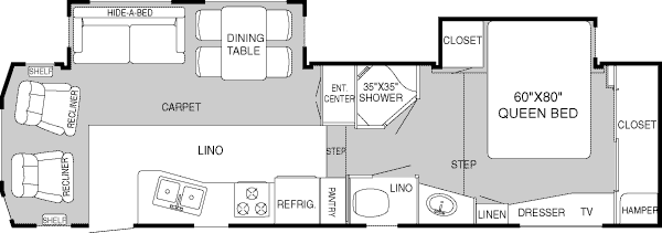
  HitchHiker II Rio Grande 31 RLBG:

 
MSRP: $45,220