2002 NuWa ARCHIVES:

  Below are thumbnailed images for each SnowBird LS floor plan, followed by a table of specifications for each plan. For a larger view of an individual floor plan, simply click on it to enlarge...

  26.5 RL
26.5 RL

 
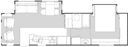
  28.5 RKBG
28.5 RKBG

 
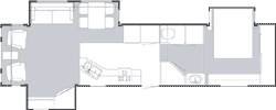
  28.5 RKTG
28.5 RKTG

 
  29.5 RLBG
29.5 RLBG

 
  34.5 RLTG
34.5 RLTG

 
   

 
Model Type Hitch Weight UVW GVWR NCC GVWR Axle CCC Spring Rating
26.5 RL 1440 7546 11240 3694 5200 3167 2600
28.5 RK BG 2040 8779 11690 2811 5200 2284 2600

Model Type Tire Size # of Axles Brake Size Wheel Size, Bolt Pattern Wheel Rating Frame Size
26.5 RL ST225/75R15D 2 EA. 12 X 2 15X6/6HOLE 2540 8" I Beam
28.5 RK BG ST225/75R15D 2 EA. 12 X 2 15X6/6HOLE 2540 8" I Beam

Model Type Suspension Overall Length w/ Caps LR/KIT Interior Height Bedroom Interior Height Exterior Height Glide Room Interior
26.5 RL Overslung 26' 11" 83"/96" 67" 12" 116"
28.5 RK BG Overslung 29' 83"/99" 72" 12" 136"

Model Type Bed Arrangement Std. Sofa Length / Type Furnace BTU Hitch Size Awning Size
26.5 RL LW 74" MB 35000 H 15000 14"
28.5 RK BG BEDGLIDE 66" HAB 35000 H 15000 16"

Model Type Optional Awning G/O Windows Kit. (Gray) Holding Tank Size Stool (Blk) Holding Tank Size Gray Holding Tank Size Fresh Water Capacity (inc. water heater) Washer/Combo
26.5 RL N/A N/A 38 GAL. 38 GAL. 56 GAL. NO
28.5 RK BG N/A 28.5 GAL 38 GAL. 38 GAL. 56 GAL. NO

Model Type Stak-Pak Washer/Dryer TV Size Size x Side Refrig. 110 Volt Dual Cassette Stereo w/ CD Player
26.5 RL NO 19" NO 12 VOLT AM/FM DUAL CASS
28.5 RK BG NO 25" NO 12 VOLT AM/FM DUAL CASS

UVW (Unloaded Vehicle Weight) is the weight of this trailer as manufactured at the factory. It includes all weight at the trailer axle(s) and tongue or pin. If applicable, it also includes full generator fluids, including fuel, engine oil and coolants.

GVWR (Gross Vehicle Weight Rating) is the maximum permissable weight of this trailer when fully loaded. It includes all weight at the trailer axle(s) and tongue or pin.

NCC (Net Carrying Capacity) Means the maximum weight of all personal belongings, food, fresh water, LP gas, tools dealer installed accessories, etc. that can be carried by this trailer.

CCC (Cargo Carying Capacity) is equal to GVWR minus each of the following: UVW, full fresh (potable) water weight (including water heater), and full LP-gas weight.