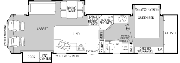
2002 NuWa ARCHIVES:

  HitchHiker Discovery 34 1/2 RLTG:

 
MSRP: $48,760