2002 NuWa ARCHIVES:

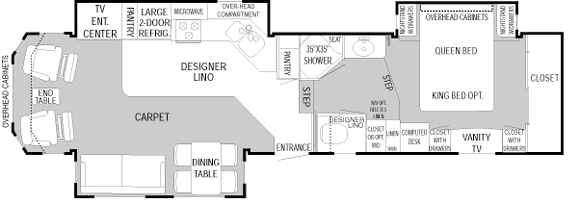
  HitchHiker Champagne 37 BWTG:

 
MSRP: $67,210