[an error occurred while processing this directive]
  Below are thumbnailed images for each HitchHiker II LS floor plan, followed by a table of specifications for each plan. For a larger view of an individual floor plan, simply click on it to enlarge...

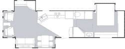
  26.5 RL
26.5 RL

 
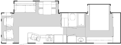
  28.5 RKBG
28.5 RKBG

 
  28.5 RKTG
28.5 RKTG

 
  29.5 RLBG
29.5 RLBG

 
  32.5 RLBG
32.5 RLBG

 
  34.5 RLTG
34.5 RLTG

 

MODEL APPROX. UVW APPROX. HITCH WT. GVWR LOAD CAP. CCC LENGTH APPROX. EXT. HT. INT. HT. (downstairs) INT. HT. (bedroom)
26.5 RL 7571 1360 10772 3201 2674 26' 11" 12' 83"/96" 67"
28.5 RL BG 8879 2140 12086 3207 2680 29' 8" 12' 2" 83"/99" 72"
28.5 RK TG 8856 2060 12014 3158 2631 29' 7" 12' 2" 83"/99" 72"
29.5 RL BG 8926 1600 11600 2674 2147 31' 12' 2" 83"/99" 72"
32.5 RL BG 9648 1920 12448 2800 2273 33' 5" 12' 3" 81"/99" 72"

MODEL INT. LENGTH (glide room AWNING AXLES SPRINGS WHEELS TIRES TIRE SIZE BRAKES FRAME
26.5 RL 116" OPT. 14' 5200 * 2600 * 2540 * 2540 * ST225/75R15D * 12" 8" I Beam
28.5 RL BG 136" OPT. 16' 5200 * 2600 * 2540 * 2540 * ST225/75R15D * 12" 8" I Beam
28.5 RK TG 68"/70" OPT. 17' 5200 * 2600 * 2540 * 2540 * ST225/75R15D * 12" 8" I Beam
29.5 RL BG 136" OPT. 16' 5200 * 2600 * 2540 * 2540 * ST225/75R15D * 12" 8" I Beam
32.5 RL BG 136" OPT. 18' 6000 3000 3040 2680 LT225/75R16E 12" 10" I Beam

MODEL FRESH WATER BLACK GRAY GRAY KITCHEN
26.5 RL 56 GAL 38 GAL 38 GAL N/A
28.5 RL BG 56 GAL 38 GAL 38 GAL 28 GAL
28.5 RK TG 56 GAL 38 GAL 38 GAL 28 GAL
29.5 RL BG 56 GAL 38 GAL 38 GAL 28 GAL
32.5 RL BG 56 GAL 38 GAL 38 GAL 28 GAL

* ESIMATED

UVW (Unloaded Vehicle Weight) is the weight of this trailer as manufactured at the factory. It includes all weight at the trailer axle(s) and tongue or pin. If applicable, it also includes full generator fluids, including fuel, engine oil and coolants.

GVWR (Gross Vehicle Weight Rating) is the maximum permissable weight of this trailer when fully loaded. It includes all weight at the trailer axle(s) and tongue or pin.

NCC (Net Carrying Capacity) Means the maximum weight of all personal belongings, food, fresh water, LP gas, tools dealer installed accessories, etc. that can be carried by this trailer.

CCC (Cargo Carying Capacity) is equal to GVWR minus each of the following: UVW, full fresh (potable) water weight (including water heater), and full LP-gas weight.