2001 NuWa ARCHIVES:

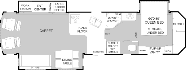
  SnowBird SE 102 34+2 RLBWTG:

 
MSRP: $59,220

 

[an error occurred while processing this directive]