2001 NuWa ARCHIVES:

  SnowBird SE 360° Virtual Tour: Main Room
 
 

Please note that the virtual tour below uses IPIX plug-in technology.
Help with the IPIX plug-in is available on our Help Section.


Click Here to see the
Bedroom tour.

- - -

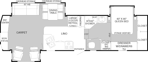
A floor plan of this model
available below.


 
 

 
34 RLTGBW

 

[an error occurred while processing this directive]