2001 NuWa ARCHIVES:

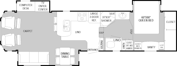
  HitchHiker Premier Wide Body 35 1/2 LKTG:

 
MSRP: $58,100