2001 NuWa ARCHIVES:

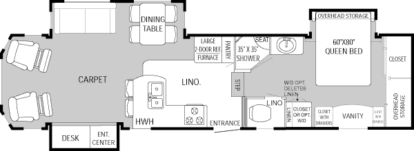
  HitchHiker Premier Wide Body 35 1/2 BWTG Master Suite Edition:

 
MSRP: $58,800