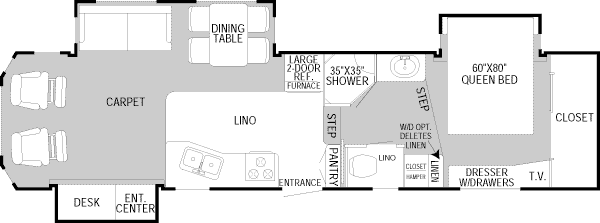
2001 NuWa ARCHIVES:

  HitchHiker Discovery 33 1/2 BWTG:

 
MSRP: $47,880