2001 NuWa ARCHIVES:

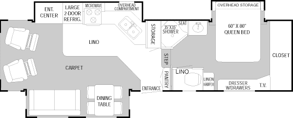
  HitchHiker Discovery 31 1/2 RLTG Master Suite Edition:

 
MSRP: $49,980