2001 NuWa ARCHIVES:

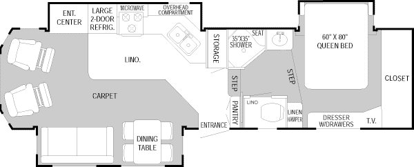
  HitchHiker Discovery 31 1/2 BWTG:

 
MSRP: $48,580