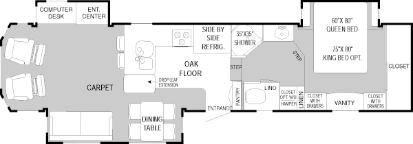
2001 NuWa ARCHIVES:

  HitchHiker Champagne Edition 38 LKTG:

 
MSRP: $72,100