2001 NuWa ARCHIVES:

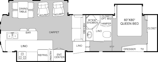
  HitchHiker II Deluxe 32 RIKTG:

 
MSRP: $49,420