2001 NuWa ARCHIVES:

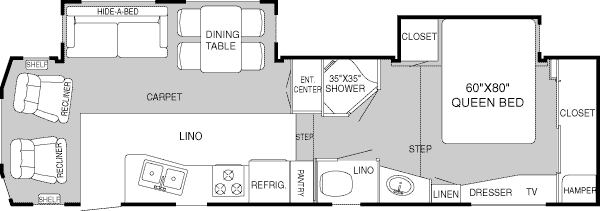
  HitchHiker II Deluxe 31 RLBG:

 
MSRP: $45,360