2001 NuWa ARCHIVES:

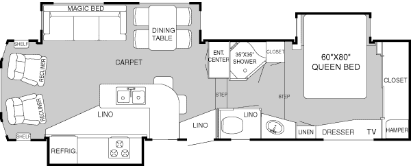
  HitchHiker II Deluxe 31 CKTG:

 
MSRP: $48,160