2000 NuWa ARCHIVES:

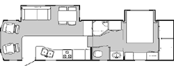
       Below are thumbnailed images for each SnowBird SE floor plan, followed by a table of specifications for each plan. For a larger view of an individual SnowBird SE floor plan, simply click on it for an enlarged and more detailed image...

  30 RKBW
30 RKBW

 
  32 RLBWBG
32 RLBWBG

 
  33 RLBWTG
33 RLBWTG

 
  34 RLBWTG
34 RLBWTG